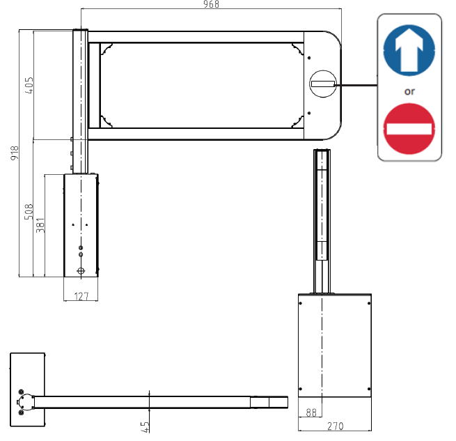
ゲートアーム(手押しゲート) M-495S
| 外形寸法 | W1,031mm×H918mm×D270mm |
| 設置方法 | アンカー固定設置 |
| 通行方向 | 単方向 |
| ソレノイド | ゲートロック時 24VDCを使用 |
bibliotheca製品 ゲートアーム(手押しゲート)M-495Sとは?
ゲートのアームを手で押して開くことで通行ができるようになる製品です。
図書館出入口に設置し、図書館利用者の入退館の動線を形成することができます。
ゲートアームには耐久性にすぐれたアルミを採用し、10万人以上の通行を可能にした耐久性を持つよう設計されております。
ゲートコントロールキット(オプション)と連動をすれば、BDS(ブックディテクションシステム)のアラーム作動時にはゲートを一時的にロックする機能もございます。
BDSと連動することにより、セキュリティ機能を高めることもでき、耐久性も高く、低コストで導入が可能なお勧めの図書館手押しゲートです。
アピールポイント
◆アーム部分はオールアルミで耐久性に優れた構造
◆コストパフォーマンスに優れた簡易ゲート
◆スタイリッシュでシンプルなデザイン






